Buseck:
Einfamilienhaus mit viel Potenzial sucht einen neuen Eigentümer.
Objekt-Nr.: IP_EFH Buseck
















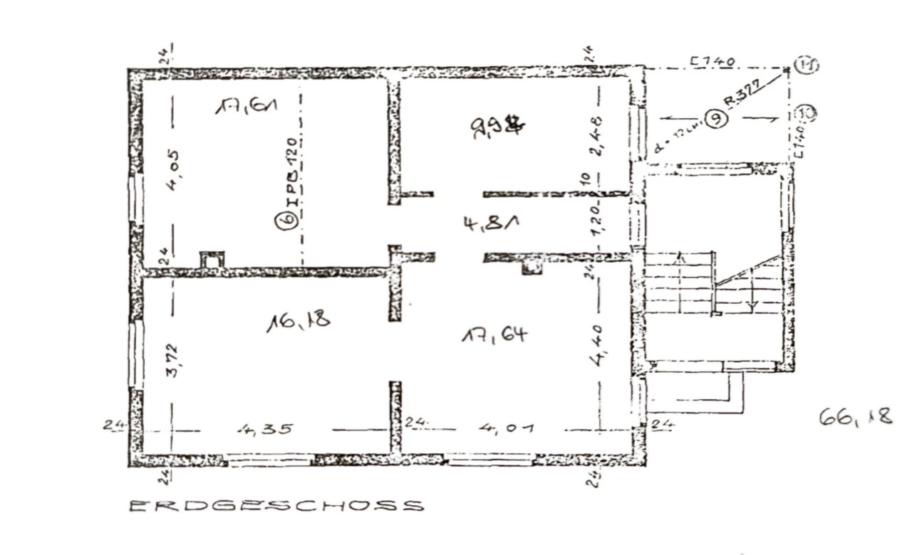
Erdgeschoss

Kellergeschoss





















Preis:
484.500 €
Wohnfläche ca.:
220 m²
Grundstück ca.:
670 m²
Zimmeranzahl:
6
Das zum Verkauf stehende Wohnhaus wurde 1971 in massiver Bauweise errichtet.
Auf einem 670 m² großen Grundstück mit Süd/West Ausrichtung
Die ca. 220 m² Wohnfläche bietet verteilen sich auf zwei Ebenen und bieten ausreichend Platz für eine Familie.
Das Haus teilt sich wie folgt auf:
Das Untergeschoss des Hauses kann optional mit einer großen ELW oder zwei kleine Einliegerwohnungen genutzt werden.
Im Obergeschoss befindet sich die Hauptwohnung.
Hier erwarten Sie die Küche mit Speisekammer, das sehr große Wohn-Esszimmer mit angrenzendem Wintergarten, drei Schlafzimmer, Gäste Toilette, Abstellraum und das Tageslichtbad.
Falls Sie zum Entspannen lieber Rasen bevorzugen - kein Problem:
Das 670 m² große Grundstück, beinhalten auch einen schönen Garten, der das komplette Haus umrahmt.
Darüber hinaus befindet sich ein Gartenteich und Gartenhäuschen auf dem Grundstück, das zusätzliche Stau-Fläche bietet.
Gerne stellen wir Ihnen die weiteren Details in einem persönlichen Gespräch vor.
Wir freuen uns auf Ihre Anfrage über das Kontaktformular!
Bitte haben Sie Verständnis dafür, dass wir nur Anfragen mit ausgefülltem Kontaktformular mit Adresse und Telefonnummer bearbeiten können.
Haustyp: Einfamilienhaus
Etagenanzahl: 2
Provisionspflichtig: ja
Provision: 3% zuzüglich 19% MwSt
Küche: Einbauküche
Bad: Dusche, Wanne, Fenster
Anzahl Schlafzimmer: 5
Anzahl Badezimmer: 3
Terrasse: 1
Einliegerwohnung: ja
Gäste-WC: ja
Dachboden: ja
Wintergarten: ja
Keller: voll unterkellert
Umgebung: Apotheke, Bahnhof, Bus, Einkaufsmöglichkeit, Grundschule, Kindergarten, ruhige Gegend, Spielplatz, weiterführende Schule, Wohngegend
Anzahl der Parkflächen: 1 x Garage
Baujahr: 1972
Bauphase: Haus fertig gestellt
Verfügbar ab: nach Absprache
Bodenbelag: Fliesen, Laminat
Heizung: Zentralheizung
Befeuerungsart: Öl
Energieausweistyp: Bedarfsausweis - gültig bis 19.02.2027
Baujahr laut Energieausweis: 2004
Bei Abschluss eines Kaufvertrages wird eine Vermittlungs-/ Nachweisprovision in Höhe von 3 % zuzüglich 19 % Mehrwertsteuer auf den Kaufpreis vom Käufer fällig.
Die von uns gemachten Informationen beruhen auf Angaben des Verkäufers bzw. der Verkäuferin. Für die Richtigkeit und Vollständigkeit der Angaben kann keine Gewähr bzw. Haftung übernommen werden. Ein Zwischenverkauf und Irrtümer sind vorbehalten.
Wir weisen auf unsere Allgemeinen Geschäftsbedingungen hin. Durch weitere Inanspruchnahme unserer Leistungen erklären Sie die Kenntnis und Ihr Einverständnis.
Das könnte Ihnen auch gefallen
Immoplan-Consulting GmbH & Co KG
Herr Filadelfo Formica
Nordanlage37
35390 Gießen
Telefon: +49 641 966119913
Mobil: +49 172 6503049
Fax: +49 641 966119919
DE-35418 Buseck
Gießen
Hessen

























































