Staufenberg:
Zweifamilien oder Generationenhaus in schöner und ruhiger Lage von Staufenberg OT mit Fernblick
Objekt-Nr.: IP-ZFH Staufenberg










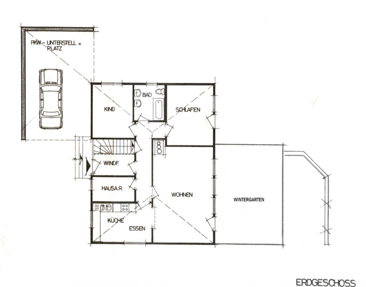
EG

OG

UG












Preis:
470.000 €
Wohnfläche ca.:
331 m²
Grundstück ca.:
778 m²
Zimmeranzahl:
11
Dieses gemütliche Zweifamilienhaus wurde im Jahr 1981 in massiver Bauweise errichtet.
Das Haus bietet Ihnen ein 778 m² großen Grundstück und eine Wohnfläche von ca. 261 m² welche sich auf zwei Geschosse verteilen.
Im Erdgeschoss befindet sich eine Wohnung mit einer Wohnfläche von ca. 130 m² welche sich auf 4 Zimmer, sowie Küche, Tageslichtbad mit Wanne und Dusche, Gäste Toilette, Speisekammer und Terrasse verteilen.
Im Obergeschoss befindet sich ebenfalls eine Wohnung mit einer Wohnfläche von ca. 130 m² welche sich auf 4 Zimmer, sowie Küche, Tageslichtbad mit Wanne und Dusche, Gäste Toilette, Speisekammer und Balkon verteilt.
Zu guter Letzt befinden sich im Untergeschoss ein bis zwei geräumige Zimmer welches als Arbeitszimmer/ Gästezimmer oder Kinderzimmer genutzt werden kann.
Des Weiteren befinden sich im Untergeschoss ein Duschbad, die Kellerräume, die Waschküche und der Heizungsraum.
Der Garten des Hauses bietet Ihnen genügend Platz für entspannte Grill Abende.
Zusätzlich gibt es noch eine Doppelgarage und zwei PKW-Stellplätze.
Weitere Auskünfte über die Immobilie geben wir Ihnen gerne telefonisch.
Bitte haben Sie Verständnis dafür, dass wir nur Anfragen mit ausgefülltem Kontaktformular mit Adresse und Telefonnummer bearbeiten können.
Der Energieausweis wird beim Besichtigungstermin vorliegen.
Haustyp: Zweifamilienhaus
Etagenanzahl: 2
Provisionspflichtig: ja
Provision: 5,95 % inklusive 19 % Mehrwertsteuer
Bad: Dusche, Wanne, Fenster, Bidet
Anzahl Schlafzimmer: 8
Anzahl Badezimmer: 3
Terrasse: 1
Gäste-WC: ja
Dachboden: ja
Keller: voll unterkellert
Anzahl der Parkflächen: 2 x Außenstellplatz; 2 x Garage
Ausblick: Fernblick
Qualität der Ausstattung: normal
Baujahr: 1981
Bauphase: Haus fertig gestellt
Verfügbar ab: ab sofort
Bodenbelag: Fliesen, Laminat
Bei Abschluss eines Kaufvertrages wird eine Vermittlungs-/ Nachweisprovision in Höhe von 5,95 % inklusive 19 % Mehrwertsteuer auf den Kaufpreis vom Käufer fällig.
Die von uns gemachten Informationen beruhen auf Angaben des Verkäufers bzw. der Verkäuferin. Für die Richtigkeit und Vollständigkeit der Angaben kann keine Gewähr bzw. Haftung übernommen werden. Ein Zwischenverkauf und Irrtümer sind vorbehalten.
Wir weisen auf unsere Allgemeinen Geschäftsbedingungen hin. Durch weitere Inanspruchnahme unserer Leistungen erklären Sie die Kenntnis und Ihr Einverständnis.
Das könnte Ihnen auch gefallen
Immoplan-Consulting GmbH & Co KG
Herr Filadelfo Formica
Nordanlage37
35390 Gießen
Telefon: +49 641 966119913
Mobil: +49 172 6503049
Fax: +49 641 966119919
DE-35460 Staufenberg
Gießen
Hessen















































